L'Art de Bâtir : Du Design à la Matière.
15 ans d'expérience internationale. L'élégance et la rigueur de l'artisanat suisse à Lisbonne.






Nos Gages de qualités








Notre Doctrine


1. L’Artisanat par Choix
Chez K'anzo, nous ne faisons pas ce métier par nécessité, mais par passion. Après un parcours entrepreneurial dans des secteurs très différents, nous sommes revenus à l'essentiel et à notre passion : le terrain, la matière et le travail manuel. Notre socle repose sur la rigueur académique qui nous a été transmis, le respect du bâti et le goût du travail bien fait. Nous ne cherchons pas à construire vite, nous cherchons à construire juste et bien.






2. La Théorie du "Pourquoi"
De nos jours, dû à l'explosion du domaine de la construction, beaucoup savent "monter" "construire" et "réparer", mais peu savent expliquer le pourquoi technique. Il manque souvent la compréhension des matériaux et des règles fondamentales de la construction. Nous ne nous contentons pas d'exécuter. Nous analysons et apprenons à comprendre chaque bâtiment avec ces contraintes et problèmes, pour ainsi garantir une rénovation saine et pérenne.
3. L'Investissement Intelligent
Dans un monde qui va toujours plus vite et où l'on cherche toujours à construire plus vite pour moins cher, notre philosophie est pragmatique : "10 sous investis correctement aujourd'hui vous en font économiser 100 demain." Nous refusons de rogner sur la qualité technique invisible pour économiser quelques euros, car c'est précisément ce qui coûte le plus cher à réparer plus tard.
4. Une Sélectivité Assumée
C’est un point clé de notre identité : nous n’acceptons pas tous les types de travaux ni tous les contrats. Nous choisissons des projets qui ont du sens, avec des clients qui partagent notre exigence de qualité. Nous voulons consacrer le temps nécessaire à chaque détail. Si nous nous engageons sur votre projet, c’est que nous avons la disponibilité pour lui apporter l'attention qu'il mérite.
Nos services
Conception &
Design d'intérieur


L’héritage de 15 ans d’esthétique internationale.




Maître d’Œuvre & Artisanat Technique
La rigueur suisse l'expérience internationale
Votre regard expert et local au Portugal.
Accompagnement & Relais de Confiance
Nous ne créons pas seulement des décors, nous concevons des modes de vie. Forte d'une expérience en Suisse, Italie, Angola et au Portugal, notre approche mêle l’harmonie visuelle à la fonctionnalité réelle.
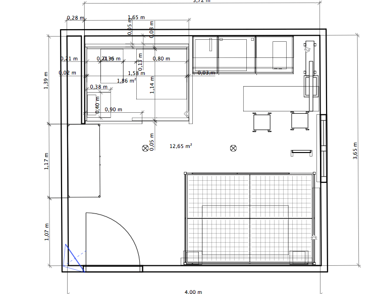
Plans & 3D : Visualisation précise avant le premier coup de pioche.
Identité : Création d'espaces qui ont une âme et une valeur patrimoniale.
Matériaux : Sélection rigoureuse pour un équilibre entre esthétique et durabilité.
C’est ici que la théorie rencontre le terrain. Grâce à un background académique suisse solide et une expertise multi-technique, nous garantissons une exécution sans faille.
Expertise Technique : Comprendre le pourquoi des matériaux et les règles de l'art.
Rénovation de Précision : Intervenir sur l'existant avec la certitude du travail bien fait.
Qualité Durable : Parce que 10 sous investis aujourd'hui en évitent 100 de réparations demain.
Vous souhaitez investir ou rénover à distance ? Nous agissons comme votre tiers de confiance. Nous ne sommes pas des agents immobiliers, nous sommes des artisans passionnés qui sécurisent votre investissement.
Diagnostic Technique : Évaluation réelle de l'état d'un bien avant achat.
Suivi de Chantier : Surveillance rigoureuse pour éviter les malfaçons et les retards.
Interface Culturelle : Le lien indispensable entre vos exigences de qualité et la réalité du terrain local.
L'expérience du regard
Notre lien avec le monde de la construction débute avec Antonio Jacinto Castelhano, l’un des tout premiers Angolais à avoir fondé une entreprise de bâtiment en Angola. Sa fille, Neuza Castelhano, diplômée de l’école Dubois de Lausanne en architecture d’intérieur et design, s’inscrit dans cet héritage en créant K’anzo il y a 15 ans. Elle y façonne des espaces où l’harmonie n’est pas un luxe, mais une évidence. Forts d’un parcours international entre la Suisse, l’Italie, le Portugal et l’Angola, nous avons appris à lire les lieux avant de les transformer. Des appartements urbains de Lausanne aux vastes domaines de la campagne italienne, nous avons dirigé plus d’une quarantaine de projets d’envergure avec une obsession constante : l’intégrité du design et la justesse des matériaux.
La rigueur du faire
Aujourd'hui, cet héritage créatif rencontre la force du terrain. Avec l’arrivée du fils, Luigi Castelhano De Luca. Ainsi K'anzo franchit une étape décisive : l’union du design et de la haute technicité.
Formé au certificat fédéral de capacité en Maçonnerie, Luigi apporte une culture du détail et une exigence de structure rares. Son parcours, complété par des maîtrises techniques au Portugal (céramique, sanitaire, charpenterie), transforme chaque plan en un ouvrage d'artisan.




